向日市 京都向日 阪急洛西口 駅前 新築テナントビル
| 物件名 | 向日市 京都向日 阪急洛西口 駅前 新築テナントビル |
|---|---|
| 所在地 | 京都府向日市寺戸町七ノ坪 |
| 交通 | 阪急電鉄京都線「洛西口」駅より徒歩2分 |
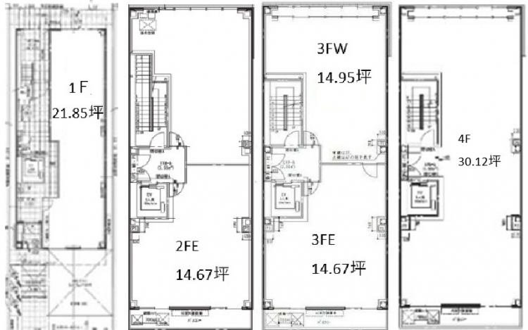
| 階/現況 | 1F~4F/スケルトン他 |
| 広さ | 14.67坪~ |
| 賃料 | 245,000円~ |
| 共益費 | 11,000円~ |
| 敷金/礼金 | 1ヶ月/2ヶ月 |
| 築年/構造 | 令和8年3月/鉄骨造4階建 |
| 駐車場 | 無 |
| 備考 | 2026年3月完成のテナントビル インターネット無料接続 テナント全6区画 1F (21.85坪)-賃料450,000円、共益費15,000円 2FE(14.67坪)-賃料264,000円、共益費11,000円 2FW(14.95坪)-済 3FE(14.67坪)-賃料245,000円、共益費11,000円 3FW(14.95坪)-賃料265,000円、共益費11,000円 4F (30.12坪)-賃料450,000円、共益費16,500円 |




















